ZLG-4000型锥形螺带干燥机发货,接触物料316L,用于农药行业。
信息来源:本站 | 发布日期:
2023-02-21
| 浏览量:429
关键词:ZLG-4000型锥形螺带干燥机发货,接触物料316L,用于农药行业。
单锥真空螺带干燥机是锥形混合机的衍生,其在原有的单一混合功能上,引入了干燥功能(在原有锥形筒体外部增加加热夹套),可以在对物料进行干燥的同时进行搅拌,实现了一机双能的效果。但在实验和生产中发现,对于热敏性物料,单锥真空干燥机的烘干时间较长,且在干燥过程会出现物料熔融、结块等现象,使得被干燥物料的物理性质和化学性质发生改变,影响后续工艺的顺利进行。
常州百得根据长期的行业生产经验,改进型单锥真空干燥机的工作效率大幅提升,不仅可以用于热敏性物料的干燥,还可以用于粉体和粉体、粉体和液体的混合、反应与干燥,并且彻底改变了传统干燥设备体积大、能耗高、工时长、效率低、噪音高、易结块、多漏点以及清洁维护不便等缺陷,是目前同类设备中能耗*低、效率*高、效果*好的一款多用途干燥设备,可在医药、化工、农药、食品等行业普遍推广。
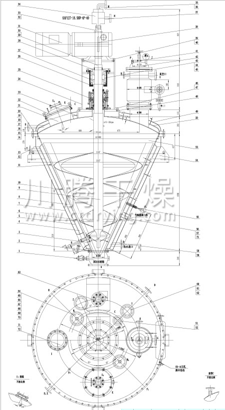
单锥真空螺带干燥机 设备概述
单锥真空干燥机利用搅拌螺带将物料旋转提升,锥形夹套内同时通入传热介质,如热水、导热油、蒸汽等,使加热后的物料从四周提升并从中间下落,快速不断的循环翻转,并通过载气将湿份及时带走,使物料达到干燥和混合目的。并且在筒体内无任何传动机构,从根本上杜绝因润滑油泄漏而导致物料污染的问题,运行可靠稳定,特别适宜卫生要求高的粉料、颗粒混合干燥。
单锥真空螺带干燥机 工作原理
单锥真空干燥机主要由驱动系统、电机减速机、机架、轴承、锥形筒体(带有夹套)、搅拌螺带、取样阀、填料密封等部件组成。设备采用电机减速机与搅拌螺带直连的方式,变频调速,转速0~20rpm,螺带与搅拌轴在特定胎具中进行焊接,使得螺带与桶壁的间隙均匀,确保了运转过程的稳定性;在搅拌轴和封头之间采用柔性石墨填料密封,有效的防止了外界杂质的进入。锥形筒体和椭圆封头都带有夹套,可通入不同种类的热介质并能承受一定压力,在搅拌混合的同时进行加热,实现物料的干燥目的,干燥效果较好,运行稳定。
单锥真空螺带干燥机 性能特点
(1) 装料量大,约是同体积的真空回转干燥器的2倍,满足大批次生产要求。
(2) 有效换热面积大。容器内壁及螺旋桨叶都可传热,是容器内面积的 140%。物料由螺旋桨叶自下而上螺旋提升,然后沿主轴呈涡流向下。物料在整个干燥过程中始终均匀分散运动,保证了物料的均衡受热。
(3) 配备有渗气装置。可在干燥过程中根据物料的不同特性和需要渗入氮气、空气或其它物质。比如氮气通过预置管加热从底阀周边吹入物料中,可起到打破固气两相平衡、保护物料、改变物料的运动轨迹、均匀物料温度、防燃防爆、消除底部死角等作用。渗气装置可设定渗气时间及渗气间隔,可进一步提高物料的干燥效率及其效果。
(4) 独特的真空通道。该机有两支真空通道,即湿料真空口和安装捕集装置的真空口,起到有效缩短干燥时间,减小真空堵塞作用。
(5) 搅拌温和,有效保护晶型。并在搅拌轴上安置了多个粉碎刀片,可边干燥边粉碎,解决了物料烘前需预处理工序。
(6) 进出料可实现无菌对接和无菌在线取样。该机进料方式可采用真空上料或错层自重上料,只要与相关的进料装置对接使可。
设备的卸料阀采用专门研制的大口径半球阀,卸料阀可根据用户的需要配置电气开启或手动开启。可与下道工序(粉碎)对接,组成整套密封无菌生产流程,达到新版GMP无菌干燥生产要求。无菌在线取样可在机内真空条件下在线取样,不干扰干燥过程。
(7) 设置高精度的温度探头,能有效监测物料干燥过程的温度。
(8) 该机整体结构简单、维护简易、清洁方便、实现在线清洗或灭菌。并可根据客户需要配置电脑自控系统。每一批次的物料实现准确的过程控制与电子记录。

